Idea výstavby českého divadla v Brně sahá do počátku 80. let 19. století. Od roku 1882 měli stálou scénu Brněnští Němci – Městské divadlo na hradbách postavené podle projektu Ferdinanda Fellnera ml. a Hermanna Helmera.
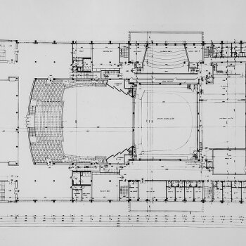
Družstvo českého divadla národního v Brně zakoupilo hostinec s tančírnou na nároží ulice Veveří a Žerotínova náměstí, který se od roku 1884 proměnil v Prozatímní české divadlo (tzv. Divadlo na Veveří). Po desetiletích hledání vhodné parcely a mnoha architektonických soutěžích vznikl v roce 1958 projekt ve Stavoprojektu, který pak finalizoval Otakar Oplatek a Vilém Zavřel ve spolupráci s Libuší Žáčkovou-Pokornou. Jako externí poradce působil Jan Víšek, který se s Vilémem Zavřelem věnoval projektování českého divadla od roku 1936 a společně v několika soutěžích zvítězili. K projekčnímu týmu ve Stavoprojektu se připojili mladí architekti Ivan Ruller a Boleslav Písařík. Stavba proběhla v letech 1960–1965 a její náklady dosáhly 100 miliónů korun. Budova nového divadla byla slavnostně otevřena 2. října 1965 inscenací opery Příhody lišky Bystroušky od Leoše Janáčka, jenž v roce 1865 přišel studovat do Brna, s nímž je neodmyslitelně spjat.
Architektura jednoho z největších divadel v Evropě, která je „rozkročena“ mezi funkcionalismem, sorelou a bruselským stylem, je oceňována jak klasicizující kompozicí budovy, tak velkoryse pojatými interiéry, které nepostrádají jistou intimitu a designový půvab včetně exkluzivních materiálů (mramor, žula, syenit, exotické dýhy). Výrazná výtvarná složka stavby i s úpravou okolí akcentuje celkový dojem v duchu Gesamtkunstwerku. Umělecká díla jsou uplatněna jak v exteriérech – parapety balkónů z měděného plechu na hlavním průčelí a travertinová skulptura moravské orlice u schodiště (Eva Kmentová a Olbram Zoubek), socha Leoše Janáčka (Stanislav Hanzl), sousoší Aloise a Viléma Mrštíkových (Vincenc Makovský a Stanislav Hanzík), tak v interiérech, kde jsou na podestách obou bočních schodišť výplně z barevného hutního skla (Stanislav Libenský a Jaroslava Brychtová), busta Leoše Janáčka (Miloš Axman). Nerealizovaná opona (Alois Fišárek) visí v podobě menšího gobelínu v primátorském salonku, kde je také starší busta Leoše Janáčka od Jana Štursy. Další návrh opony (Dalibor Chatrný) byl nedávno převeden do nástěnného koberce v ředitelském salonku, kde je i busta Ivo Váni Psoty (Nikos Armutidis).

Za zmínku stojí komplikované okolnosti vzniku uměleckých děl, jež vyústily až v soudní peripetie, které značně ztrpčily práci Evy Kmentové a Olbrama Zoubka, avšak umělci se i v tehdejší složité době domohli práva. Zamítnut byl vítězný návrh opony od Aloise Fišárka, který však odmítl absolvovat soudní spor, ale jeho dílo podnítilo ostrý názorový střet v tisku, kde je skvěle obhájil Milan Kundera. Podrobnosti budou publikovány v příštím ročníku sborníku Brno v minulosti a dnes.

Divadelní budova prošla ve druhém desetiletí 21. století kompletní obnovou v několika etapách podle návrhu Petra Hrůši a jeho ateliéru (více info) a upravena byla v souvislosti s výstavbou podzemních garáží také piazzeta, která získala nové vodní prvky od architekta Jaroslava Černého z Ateliéru A3. Více. 

Zavřít
Loading...